Neem nu contact op. Bel 050-3114646

Jaltadaheerd 195

9737 HN Groningen

€ 275.000 k.k.

Woonoppervlakte
107m2

Omschrijving

KORT
Goed onderhouden benedenwoning met 3 slaapkamers, zonnige tuin en veel leefruimte (107 m2). Ideale starterswoning en zeker een bezichtiging waard!

OMGEVING
De ligging is prima te noemen. Het huis is gelegen in een autoluw hofje en kijkt uit op een groenstrook. Voldoende parkeergelegenheid voor de deur. De ringweg is snel en makkelijk bereikbaar en vrijwel alle voorzieningen bevinden zich op loopafstand van de woning.

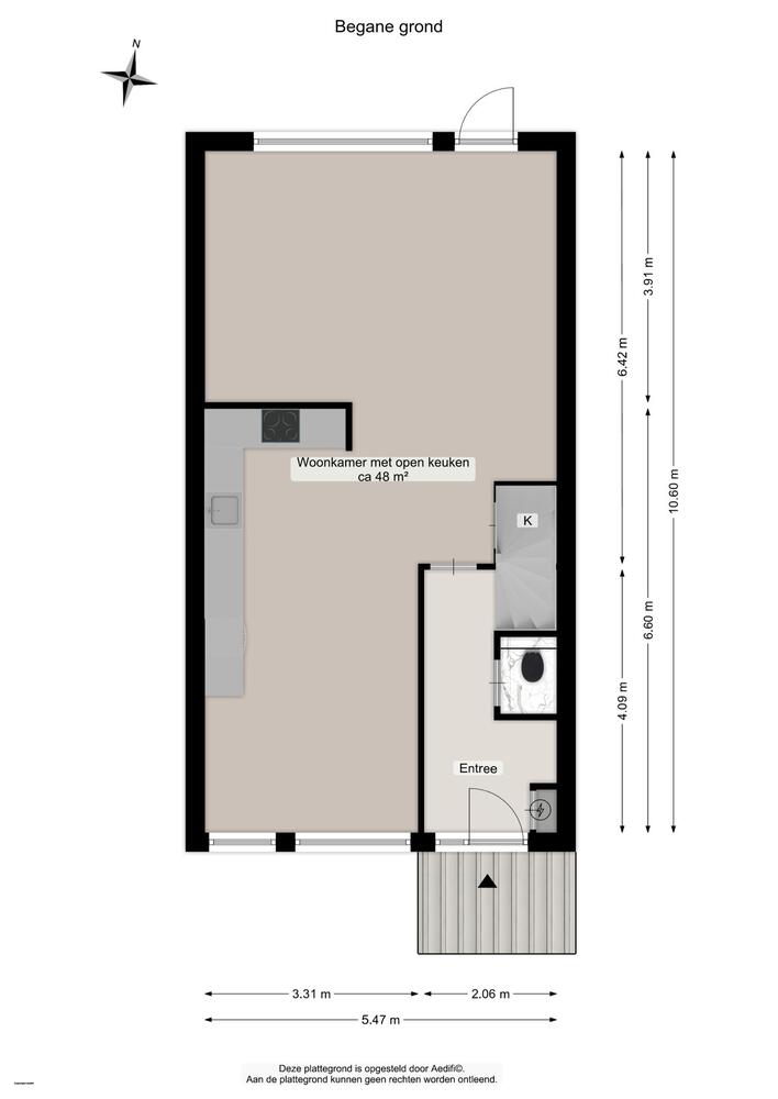
INDELING
Begane grond: entree/hal, meterkast, keurig toilet met fonteintje, ruime living (ca. 48 m2) met trapkast en een keurige moderne half open keuken (2022) v.v. inbouwapparatuur.
Eerste verdieping: overloop, drie slaapkamers (ca. 14, 10 en 10 m2), badkamer van 4 m2 (met wastafel, douche en tweede toilet). Deze badkamer is in 2020 gepimpt. En tevens de stookruimte (v.v. cv-ketel, wasmachine aansluiting en mechanische ventilatie).

ALGEMEEN
- leuke en lichte benedenwoning;
- bouwjaar 1984;
- redelijke goed geïsoleerd (energielabel C);
- voorzien van dubbel glas (deels HR++);
- verwarming middels cv-combiketel 2022;
- meterkast vernieuwd in 2022;
- houten berging in de achtertuin;
- gezonde en actieve VvE,
- bijdrage is € 63,- per maand.

LET OP
- standaard waarborgsomregeling van toepassing;
- ouderdomsclausule van toepassing;
- bekijk onze uitgebreide plattegronden op funda;
- aanvaarding in overleg. Voorkeur vanaf half oktober 2025.

Kenmerken

  • Bouwvorm: Bestaande bouw
  • Daktype: Zadeldak
  • Energieklasse: C

Deze woning is al verkocht door Boekholt & partners!

Wilt u ook uw woning door een makelaar van Boekholt & partners laten verkopen? Vul dan het onderstaande formulier in.