Neem nu contact op. Bel 050-3114646

Hunzeweg 48

9893 PD Garnwerd

€ 399.000 k.k.

Woonoppervlakte
115m2

Perceelopervlakte
430 m2

Bouwjaar
1939

Soort bouw
EENGEZINSWONING

Omschrijving

Prachtig achter de bekende dijk van Garnwerd gelegen, compleet verbouwde en gemoderniseerde vrijstaande eengezinswoning met slaapkamer en badkamer op de begane grond en drie slaapkamers op de verdieping. Ruime eigen oprit en een mooie voor- zij- en achtertuin met overkapping en vrijstaand tuin chalet. Smaakvol aangekleed en afgewerkt, keurig bewoond, volledig geïsoleerd, 11 zonnepanelen (energielabel A) en uitermate compleet. Een plaatje!

Indeling:
Entree/hal met zijgevelraam, trapopgang en toegang tot de woonkamer.
Sfeervolle doorzonwoonkamer (ca. 45 m2 inclusief keuken, vloerverwarming) met pvc vloer, hoog balkenplafond, houtkachel en vaste kastenwand. Aan de achterzijde openslaande deuren naar de het overdekte terras. De woonkamer kijkt uit op de tuin. Deur naar de trapkelder (ca. 6m2, 1,7 m. hoog, droog).
Semi-open keuken welke is voorzien van alle gemakken: grote koelkast, vriezer, vaatwasser, losstaand gasfornuis met oven, magnetron en veel bergruimte in onder - en bovenkasten.
Doorloop naar een achterhal met pantry v.v. wasmachine- en drogeraansluiting en ruime werkplek. CV kast (ketel 2022, HR, eigendom). Gang met modern toilet en toegang tot de bad- en slaapkamer.
Ruime en luxe slaapkamer (ca. 11 m2) die uitkijkt op de tuin en de dijk.
Royale (ca. 9 m2) en luxe badkamer met wastafelmeubel, ruime inloopdouche met twee regendouchekoppen en een ligbad. Een bovenlicht (elektrisch met regen sensor) zorgt voor extra lichtinval.
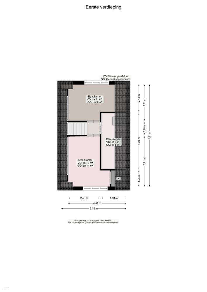
Verdieping: overloop met vlizoluik naar de vliering.
Drie slaapkamers van 11, 9 en 5 m2, alle voorzien van laminaat-vloer.
Ruime vliering.

Voor- en zijtuin met gazon en borders.
Gezellige achtertuin met gazon en vrijstaand houten tuinchalet (ca. 15 m2).
De tuin ligt tegen de dijk van Garnwerd. Aan de achterzijde ligt het gezellige en mooie Garnwerd aan zee.

Bijzonderheden:
- Uitermate luxe en complete woning op een fraaie locatie.
- energiezuinig: vloer-, spouw-, dak-isolatie, volledig HR++ glas, 11 zonnepanelen (energielabel A)
- oprit met plaats voor drie auto's
- Groningen op 15 autominuten.

Kenmerken

  • Woonhuistype: Vrijstaande_woning
  • Bouwvorm: Bestaande bouw
  • Daktype: Zadeldak
  • Energieklasse: A

Deze woning is al verkocht door Boekholt & partners!

Wilt u ook uw woning door een makelaar van Boekholt & partners laten verkopen? Vul dan het onderstaande formulier in.