Neem nu contact op. Bel 050-3114646

Schuitendiep 41

9711 RB Groningen

€ 430.000 k.k.

Woonoppervlakte
128m2

Perceelopervlakte
54 m2

Bouwjaar
1650

Soort bouw
EENGEZINSWONING

Omschrijving

KORT
Wonen in een stukje Groningse geschiedenis? Dat kan aan het Schuitendiep 41. Dit unieke Rijksmonument, met een bouwjaar rond 1650, combineert karakteristieke charme met modern wooncomfort – en dat op een toplocatie aan de gracht, op loopafstand van het bruisende stadscentrum.

Bij binnenkomst valt direct de authentieke sfeer op: de prachtige granito vloer, de gezellige wandtegels en de hoge plafonds met robuuste houten draagbalken geven het pand een warme, monumentale uitstraling. In de loop der jaren is de woning zorgvuldig gemoderniseerd. Zo vind je er een eigentijdse keuken en een lichte woonkamer – zonder dat de authentieke details verloren zijn gegaan.
En dan is er nog het uitzicht: het Schuitendiep ligt letterlijk aan je voeten. Dagelijks genieten van dit sfeervolle grachtenbeeld maakt het wonen hier extra bijzonder.
Tot slot is dit bijzondere pand verrassend duurzaam: met energielabel C is ook aan de toekomst gedacht.

Een unieke kans die je niet vaak tegenkomt – deze woning moet je gezien hebben!

LOCATIE
Het Schuitendiep combineert de charme van het wonen aan de grachten én alle gemakken van het stadsleven binnen handbereik. De gezellige cafés, de restaurants en winkels die Groningen te bieden hebben zijn allen op loopafstand te vinden. De uitvalswegen zijn snel te bereiken via de westelijke en zuidelijke ringweg. Maar ook het UMCG, de RUG en het centraal station zijn uitstekend bereikbaar.

INDELING
Begane grond:
Binnenkomst in de hal. Aan de voorzijde van de woning een handige en multifunctionele ruimte (te gebruiken als bijvoorbeeld kantoorruimte, woonkamer of slaapkamer) van ca. 20m² met een sfeervolle hardstenen schouw. Aan de achterzijde een slaapkamer van ca 11m² met toegang tot het binnenplaatsje. Beide ruimtes zijn voorzien van vloerverwarming met een hardstenen vloer voor extra comfort.
Ook bevindt zich een moderne badkamer op de begane grond, voorzien van inloopdouche, toilet, wastafel en aansluitingen voor het witgoed, ook met vloerverwarming!

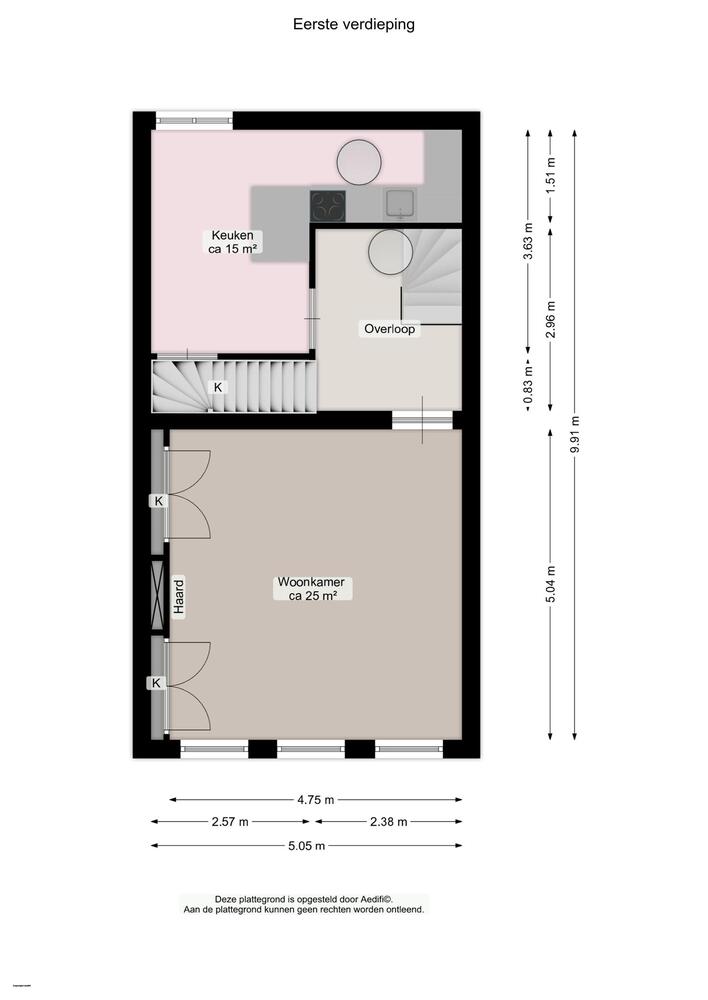
Eerste verdieping:
De monumentale trap naar de eerste verdieping maakt de verbinding tussen beide verdiepingen extra bijzonder. Het hoogtepunt op deze verdieping is de woonkamer (ca. 25m²) aan de voorzijde. Deze ruimte ademt historie met de visgraatvloer, de hoge ramen, de sfeervolle draagbalken, een open haard en het fantastische uitzicht op het Schuitendiep uiteraard. Aan de achterzijde een moderne keuken met kwartsiet aanrechtblad voorzien van divers inbouwapparatuur zoals een inductiekookplaat, koelkast en oven.

Tweede verdieping:
Op de tweede verdieping bevindt zich de tweede slaapkamer van ca. 14m² en een tweede badkamer met inloopdouche, toilet en ligbad. Vanaf de overloop loop je zo het dakterras van ca. 21m², met uitzicht op het Gedempte Kattendiep, op.
Middels een vlizotrap is de bergzolder bereikbaar met een vloeroppervlakte van ca 16m².

ALGEMEEN
- monumentaal pand uit ca. 1650;
- woonoppervlakte van 128m²;
- vloerverwarming op de begane grond;
- top locatie aan de gracht en in het centrum;
- een combinatie van authenticiteit en modern gemak;
- verwarmd middels CV uit 2025;
- energielabel C.

LET OP
- er bevindt zich scheurvorming bij nr 39, wat doorgetrokken is naar nr. 41;
- de standaard waarborgsomregeling van toepassing;
- ouderdomsclausule van toepassing;
- bekijk onze uitgebreide plattegronden op Funda;
- aanvaarding in overleg.

Kenmerken

  • Woonhuistype: Tussenwoning
  • Bouwvorm: Bestaande bouw
  • Daktype: Dwarskap
  • Energieklasse: C

Bezichtig deze woning.

Vul dit formulier in om direct een vrijblijvende bezichtiging in te plannen.