Neem nu contact op. Bel 050-3114646
Celebesstraat 9
9715 JA Groningen
€ 339.000 k.k.Woonoppervlakte
82m2
Bouwjaar
1936
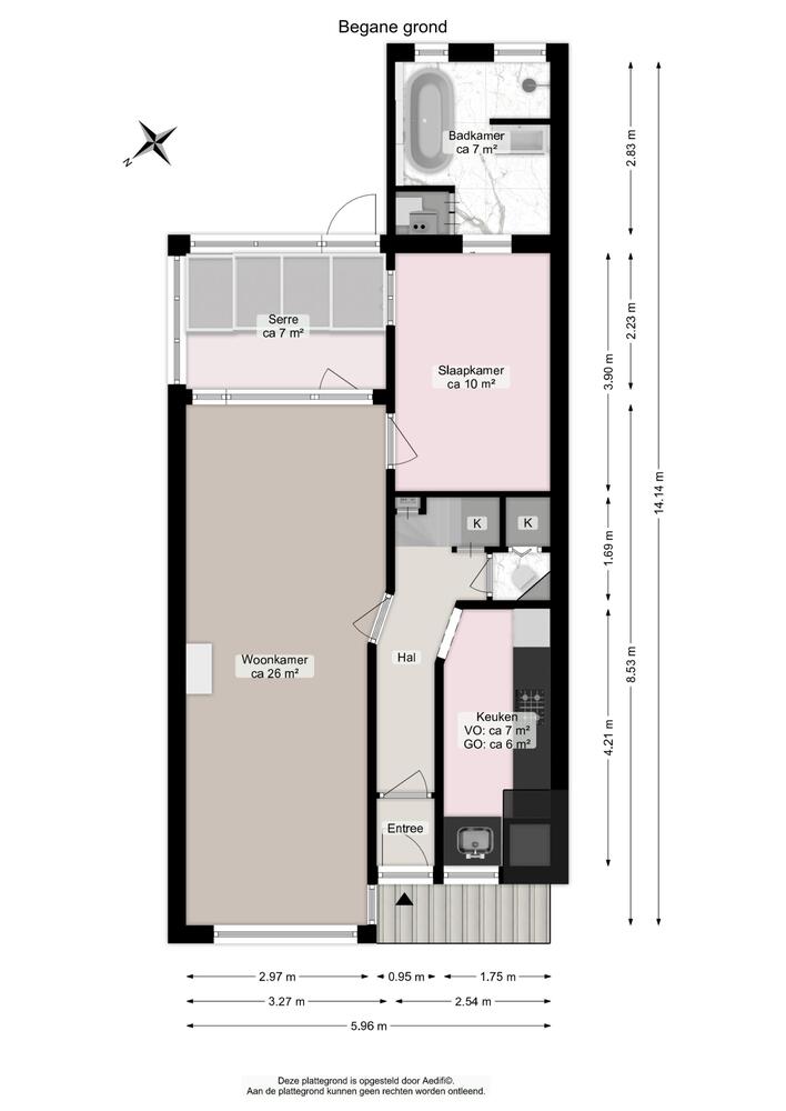
Omschrijving
KORTIn de Celebesstraat, kenmerkend door de Amsterdamse Schoolstijl en het beschermde stadsgezicht, bevindt zich deze sfeervolle en instapklare jaren ’30 benedenwoning (82 m2) met torenkamer, serre en een heerlijke zonnige achtertuin.
OMGEVING
De woning is gelegen in de gewilde en levendige Korrewegwijk en bevindt zich op loopafstand van winkels, gezellige horeca en het Noorderplantsoen. Ook het UMCG is dichtbij, evenals de ring rondom de stad en OV-verbindingen.
De benedenwoning ligt in een groene wijk met veel parkjes in de buurt.
HET APPARTEMENT
De woning komt uit 1936 en heeft nog steeds meerdere jaren ‘30 elementen die de woning meteen sfeer geven. De woning heeft een lange woonkamer die veel leefruimte biedt.
Een fijn verlengstuk van de woning is de lichte serre waarvan het dak in 2022 volledig is vernieuwd en is voorzien van hr++ glas. In de serre kan tot laat op de dag genoten worden van het natuurlijke licht en ‘s avonds van de sterrenhemel. Een ideale ruimte om te ontspannen met een kopje koffie of een boek.
De ruimte is ook uitermate geschikt als thuiswerkplek of hobbykamer.
Aan de achterzijde van de woning bevindt zich de ruimte die momenteel in gebruik is als slaapkamer. Hier verschijnt in de loop van de ochtend de zon door de openslaande deuren. Heerlijk tijdens ontbijt op bed in het weekend. Aangrenzend aan de slaapkamer bevindt zich de badkamer en suite, voorzien van een vrijstaand ligbad, een inloopdouche en een netjes weggewerkte wasmachine.
De praktische keuken aan de voorzijde van de woning is uitgerust met diverse inbouwapparatuur én een Quooker.
Op de eerste verdieping bevindt zich nog een extra slaapkamer, deze is voorzien van handige inbouwkasten.
TUIN
De woning beschikt over een voortuin en een rustige, zonnige, achtertuin waar je amper het verkeer hoort. De achtertuin heeft ook geen directe achterburen. Dankzij de ligging van de tuin kun je de hele dag van de zon genieten. Perfect om hier wat uurtjes in de hangmat door te brengen.
In de tuin staat ook een houten schuurtje, handig voor wat extra opslag.
ISOLATIE
De woning is geheel voorzien van dubbel glas, heeft een eigen cv-ketel uit 2022 en heeft energielabel C.
ALGEMEEN
- charmante jaren 30 woning;
- veel karakter en historie;
- instapklaar;
- keuken voorzien van Quooker;
- luxe badkamer met vrijstaand bad en inloopdouche;
- serre met veel daglicht en recent vervangen dak (2022);
- eigen cv ketel uit 2022;
- actieve vve;
LET OP
- standaard waarborgsomregeling van toepassing;
- ouderdomsclausule van toepassing;
- bekijk onze uitgebreide plattegrond op funda;
- aanvaarding in overleg. Voorkeur vanaf half december.
Kenmerken
- Bouwvorm: Bestaande bouw
- Daktype: Zadeldak
- Energieklasse: C
Deze woning is al verkocht door Boekholt & partners!
Wilt u ook uw woning door een makelaar van Boekholt & partners laten verkopen? Vul dan het onderstaande formulier in.