Neem nu contact op. Bel 050-3114646

Kerkstraat 11

9801 CN Zuidhorn

€ 395.000 k.k.

Woonoppervlakte
105m2

Perceelopervlakte
265 m2

Bouwjaar
1970

Soort bouw
EENGEZINSWONING

Omschrijving

KORT
Ben je op zoek naar een instapklare woning met ruimte, comfort én een uitstekende ligging? Dan is Kerkstraat 11 in Zuidhorn precies wat je zoekt! Deze goed onderhouden woning ligt in een rustige, gezellige straat op loopafstand van het centrum – met alle voorzieningen binnen handbereik.
De woning zelf is van alle gemakken voorzien, zoals een moderne keuken, een nette badkamer, drie ruime slaapkamers en een heerlijke, zonnige tuin met veranda direct aan de woning.
De uitgevoerde verduurzamingen, zoals spouwmuurisolatie, vloerisolatie, airconditioning en 12 zonnepanelen, maken deze woning daarnaast ook helemaal klaar voor de toekomst.

LOCATIE
De woning bevindt zich in een rustige straat, op een steenworp afstand van het centrum van Zuidhorn. Zuidhorn beschikt over alle nodige voorzieningen die je van een dorp mag verwachten, zoals supermarkten, winkels, restaurants en scholen.
Daarnaast is Zuidhorn heel gunstig gelegen ten opzichte van Groningen; met de trein ben je binnen 9 minuten op het centraal station van Groningen. Met de auto ben je er in ongeveer 15 minuten.

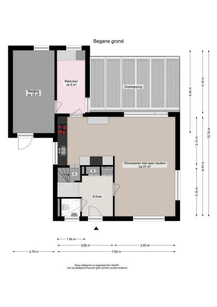
INDELING
Binnenkomst in een ruime entree met het toilet met wastafel, de trapopgang naar de eerste verdieping en opbergkasten. Rechts van de hal bevindt zich de lichte woonkamer – dankzij de grote raampartijen – met open keuken van samen ca. 37 m². De keuken is voorzien van inbouwapparatuur, waaronder een inductiekookplaat, een vaatwasser, een oven én een magnetron. De nis in de keuken creëert een mooi koffiehoekje. De praktische kelderkast, toegankelijk vanuit de keuken, zorgt voor meer dan voldoende opbergruimte.
Achter de keuken is de bijkeuken (ca. 8 m²) gesitueerd, met de aansluitingen voor het witgoed, en aansluitend de berging (ca. 15 m²).

Op de eerste verdieping bevinden zich drie ruime slaapkamers (ca. 13 m², 12 m² en 10 m²) en een ruime badkamer van ca. 7 m² met inloopdouche, wastafelmeubel en tweede toilet.
Middels een vlizotrap is de zolderberging te bereiken, welke verrassend ruim is met ca. 34 m² vloeroppervlakte.

De achtertuin, zowel te bereiken vanuit de woonkamer als vanuit de bijkeuken, is heerlijk zonnig. Door de vrijstaande ligging van de woning is de tuin uiteraard ook buitenom, vanaf de oprit te bereiken. Aan de woning is een veranda geplaatst – ideaal voor lange zomeravonden. Achterin de tuin bevindt zich nog een houten berging voor het opbergen van bijvoorbeeld tuingereedschap en fietsen.

KENMERKEN
- rustig gelegen, maar toch vlakbij het centrum;
- energielabel B, mede door HR++ glas, spouwmuurisolatie en vloerisolatie;
- airco in de keuken voor koelen én verwarmen;
- 12 zonnepanelen;
- voor extra zacht water is er een waterontharder geplaatst;
- zonnige en ruime achtertuin met heerlijke overkapping aan de woning;
- moderne keuken voorzien van al het inbouwapparatuur;
- drie ruime slaapkamers.

LET OP
- standaard waarborgsomregeling van toepassing;
- bekijk onze uitgebreide plattegronden op funda;
- aanvaarding: in overleg.

Kenmerken

  • Woonhuistype: Vrijstaande_woning
  • Bouwvorm: Bestaande bouw
  • Daktype: Zadeldak
  • Energieklasse: B

Deze woning is al verkocht door Boekholt & partners!

Wilt u ook uw woning door een makelaar van Boekholt & partners laten verkopen? Vul dan het onderstaande formulier in.