Neem nu contact op. Bel 050-3114646

Elzenhof 17

9471 SP Zuidlaren

€ 399.000 k.k.

Woonoppervlakte
101m2

Perceelopervlakte
287 m2

Bouwjaar
1965

Soort bouw
EENGEZINSWONING

Omschrijving

Heerlijk lichte en volledig gemoderniseerde 2-onder-1-kap woning.
Aan een rustig pleintje staat deze uitgebouwde 2 onder 1 kapper met een royale voor- en achtertuin. De woning is geheel gemoderniseerd. De tuingerichte woonkamer is bijzonder licht en ruim, voorzien van openslaande deuren naar de zonnige achtertuin op het zuidwesten. Op de begane grond is ook een lichte werkkamer aanwezig die thuiswerken plezierig maakt. Daarnaast is er een ruime bijkeuken met mogelijkheid voor wasmachine en droger. De eerste verdieping telt drie slaapkamers en een complete badkamer, terwijl de tweede verdieping beschikt over een vliering met veel bergruimte. Aangrenzend aan de groene, ruime tuin bevindt zich een stenen garage en extra bergruimte.

Deze woning combineert comfort en functionaliteit met duurzaamheid: grotendeels kunststof kozijnen, volledige isolatie, 8 zonnepanelen en energielabel A. Kortom, een instapklare en uitermate nette woning voorzien van alle gemakken in een rustige, groene woonomgeving nabij scholen, het centrum van Zuidlaren, uitvalswegen en het prachtige natuurgebied De Drentse Aa.

Indeling
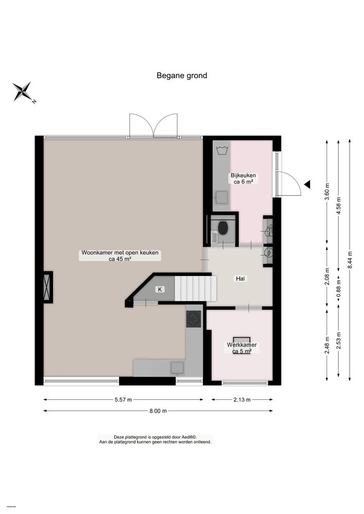
Begane grond
Zij-entree in de bijkeuken, welke voorzien is van een pantry en de wasmachine aansluiting. Doorloop naar de hal met modern toilet, trap naar eerste verdieping en de meterkast.
De heerlijk lichte woonkamer (samen met de keuken 45m²!) is voorzien van een fraaie eikenvloer en openslaande deuren naar de zonnige achtertuin op het zuidwesten.
Aan de voorzijde is de moderne, semi-open keuken in hoekopstelling met ruimte voor een grote eettafel. De lichte keuken is voorzien van vaatwasser, inductiekookplaat, rvs-afzuigkap, combi-oven en koelkast. Daarnaast is er ruime provisiekast/kelder aanwezig.
Eveneens aan de voorzijde bevindt zich een praktische en nette werkkamer (ca. 5m²) met raam en daklicht.

Eerste verdieping
Overloop met toegang tot alle vertrekken.
Op de verdieping bevinden zich 3 slaapkamers van ca. 10m², 8m² en 7m².
Nette complete badkamer voorzien van jacuzzi, tweede toilet, vaste wastafel en inloopdouche.

Tweede verdieping
Ruime zolder met veel bergruimte, bereikbaar middels vlizotrap.

Tuin
Groene voortuin.
Heerlijk ruime en besloten achtertuin op het zuidwesten met achterom, groot terras, veranda, gazon, borders en toegang tot garage.
Praktische garage (eigen kavel, ca 18m²) met elektra.

Bijzonderheden
Uitermate lichte, nette en complete woning!
Onderhoudsarm, door de grotendeels kunststof kozijnen
Ruime garage, grenzend aan eigen tuin.
Energiezuinig, energielabel A!

Kenmerken

  • Woonhuistype: Twee_onder_een_kapwoning
  • Bouwvorm: Bestaande bouw
  • Daktype: Dwarskap
  • Energieklasse: A

Deze woning is al verkocht door Boekholt & partners!

Wilt u ook uw woning door een makelaar van Boekholt & partners laten verkopen? Vul dan het onderstaande formulier in.