Neem nu contact op. Bel 050-3114646

Nieuwestreek 11

9891 AA Ezinge

€ 439.000 k.k.

Woonoppervlakte
143m2

Perceelopervlakte
410 m2

Bouwjaar
1858

Soort bouw
EENGEZINSWONING

Omschrijving

KORT
Aan de Nieuwestreek in Ezinge staat deze ruime en karakteristieke vrijstaande woning (143 m²) te koop. Hier geniet u van het beste van twee werelden: comfortabel wonen met moderne voorzieningen én het vrije gevoel van een onovertroffen uitzicht over de uitgestrekte landerijen aan de achterzijde. Extra genieten doet u in de recent geplaatste tuinkamer – de perfecte plek om de zonsondergang te bewonderen.

De woning biedt volop ruimte met maar liefst vier slaapkamers, ideaal voor een gezin of voor wie thuis wil werken. De moderne keuken is van alle gemakken voorzien en vormt het hart van het huis. Daarnaast zijn er twee badkamers aanwezig, waarvan één recent gemoderniseerd is. Naast de woning staat een ruime schuur: een veelzijdige ruimte die kan dienen als hobbyruimte, atelier of opslag. Het huis is bovendien voorzien van dubbel glas en beschikt over 12 zonnepanelen.

Kortom: een fantastische woning, voorzien van alle gemakken!

LOCATIE:
Ezinge is een charmant wierdedorp met een rustiek karakter en sfeervolle smalle straatjes. Aan de rand van dit dorp bevindt zich de woning aan de Nieuwestreek 11. Ezinge beschikt over diverse voorzieningen, zoals een supermarkt, huisarts, basisschool en een restaurant bij de brug. Hier kun je zowel heerlijk dineren maar ze organiseren ook veel leuke 'evenementen' zoals een dinerpubquiz, tapas avondjes, klaverjassen etc.
De omgeving – het Nationaal Landschap Middag-Humsterland – leent zich uitstekend voor fietsers en wandelaars. Daarnaast ligt de stad Groningen op slechts 20 minuten rijden.

INDELING:
Begane grond:
Hal/entree met trapopgang en toegang tot alle vertrekken. Een ruime woonkamer met sfeervolle haard en moderne open keuken (ca. 52 m²). De keuken is uitgerust met een kookeiland met inductiekookplaat, kokendwaterkraan, combi-oven, koelkast en separate vriezer. Via de openslaande deuren bereikt u de riante achtertuin (ca. 11 x 17 m) met grote schuur en aangebouwde tuinkamer.

Op de begane grond bevinden zich daarnaast twee slaapkamers (14 en 9 m²). Achter de grootste slaapkamer ligt een praktische bijkeuken met wasmachineaansluiting en een deur naar de tuin. De eerste badkamer (ca. 7 m²) is modern en strak afgewerkt en voorzien van ligbad, toilet, douche en een wastafelmeubel met fraaie kommen.

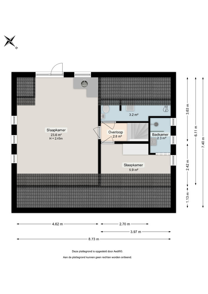
Verdieping
Overloop met tweede toilet, twee slaapkamers (6 m² en maar liefst 24 m²) en de tweede badkamer met wastafelmeubel en inloopdouche.

KENMERKEN
- bouwjaar ca. 1858;
- hoog afwerkingsniveau op de begane grond;
- grote schuur voor diverse doeleinden
- fraaie tuinkamer met een heerlijk uitzicht over de landerijen
- zeer riante achtertuin;
- 12 zonnepanelen;
- parkeren op eigen terrein;
- oud beklemrecht.

Let op:
- standaard waarborgsomregeling van toepassing;
- bekijk onze uitgebreide plattegronden op funda;
- aanvaarding: in overleg.

Kenmerken

  • Woonhuistype: Vrijstaande_woning
  • Bouwvorm: Bestaande bouw
  • Daktype: Samengesteld dak
  • Energieklasse: G

Bezichtig deze woning.

Vul dit formulier in om direct een vrijblijvende bezichtiging in te plannen.