Neem nu contact op. Bel 050-3114646

Venuslaan 29

9742 KH Groningen

€ 375.000 k.k.

Woonoppervlakte
119m2

Perceelopervlakte
120 m2

Bouwjaar
1967

Soort bouw
EENGEZINSWONING

Omschrijving

Ruime hoekwoning met 5 slaapkamers, stenen garage van ruim 20 m², 7 zonnepanelen en vrijwel volledig HR++-glas!

Gelegen aan een rustig woonerf, op korte afstand van voorzieningen zoals het overdekte winkelcentrum Paddepoel voor alle dagelijkse boodschappen. Ook scholen, kinderopvang en sportfaciliteiten zijn nabij. De woning ligt gunstig ten opzichte van de Ringweg West en Noord en op korte afstand van het Zernikecomplex en het centrum van Groningen.

Indeling:
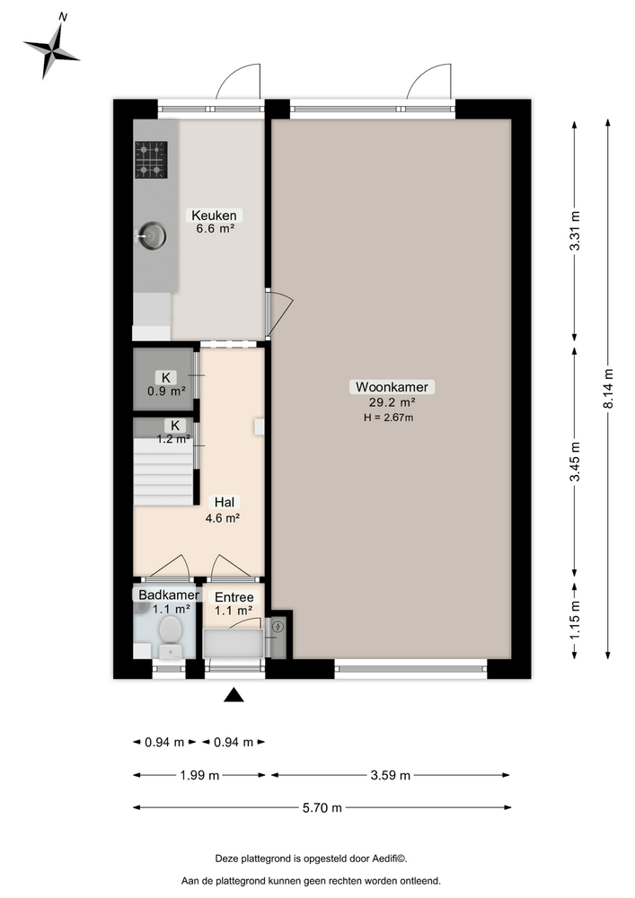
Begane grond:
Entree/hal met tochtportaal, gang met toilet, trapkast en meterkast (2024). Lichte woonkamer van ca. 30 m² met parketvloer en tuindeur. Dichte keuken met achteringang, voorzien van inbouwkeuken met 4-pits gaskookplaat, afzuigkap, combimagnetron, koelkast en natuurstenen blad.

Eerste verdieping:
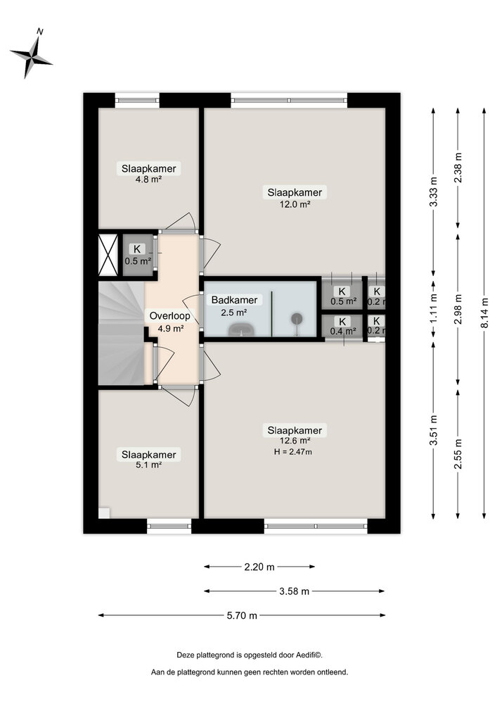
Overloop met aan de rechterzijde de 1e slaapkamer van ca. 5 m², de 2e slaapkamer van ca. 12 m² met vaste kasten, badkamer met douche en wastafel, 3e slaapkamer van ca. 13 m² met vaste kasten en een 4e slaapkamer van ca. 5 m².

Tweede verdieping:
Overloop met wasmachineaansluiting en cv-opstelling, en een ruime 5e slaapkamer van ca. 16 m² met bergruimte achter de knieschotten en een grote dakkapel over de gehele voorzijde. Via een luik is een bergzolder bereikbaar.

Tuin en garage:
Dankzij de hoekligging is de achtertuin goed bereikbaar en voorzien van een vrijstaande stenen berging. Direct naast de woning bevindt zich een ruime stenen garage van ca. 20 m², eveneens met elektra en via de tuin toegankelijk.

Bijzonderheden
- Energielabel B
- 7 zonnepanelen à 410 Wp (2024)
- Vrijwel volledig HR++-beglazing (2023)
- Cv-ketel: Remeha Tzerra (2024)
- Nieuwe meterkast (2024)
- Nieuwe dakgoten en regenpijpen (2025)
- Onttrekkingsvergunning aanwezig
- 'Niet-zelfbewoningsclausule' van toepassing
- Aanvaarding op korte termijn mogelijk

Kenmerken

  • Woonhuistype: Hoekwoning
  • Bouwvorm: Bestaande bouw
  • Daktype: Dwarskap
  • Energieklasse: B

Deze woning is al verkocht door Boekholt & partners!

Wilt u ook uw woning door een makelaar van Boekholt & partners laten verkopen? Vul dan het onderstaande formulier in.