Neem nu contact op. Bel 050-3114646

De Hulstlaan 5

9351 EA Leek

€ 335.000 k.k.

Woonoppervlakte
100m2

Perceelopervlakte
225 m2

Bouwjaar
1963

Soort bouw
EENGEZINSWONING

Omschrijving

Aan een brede, rustige straat en op loopafstand van het centrum gelegen, gemoderniseerd en uitgebouwd helft van een dubbel woonhuis (BJ 1963) met doorzonwoonkamer, prachtige keuken, riante bijkeuken, vier slaapkamers, veranda en zonnige achtertuin. Ca 120 m2 oppervlak in het gehele huis.
Grotendeels geïsoleerd (energielabel B!), goed onderhouden, voorzien van een carport en ruime eigen oprit.

INDELING
Begane grond:
Hal/entree met toilet, trapopgang en doorloop naar de keuken/woonkamer.
Doorzon woonkamer met luxe semi open keuken (tezamen ca. 38m²). Deur naar de bijkeuken.
Riante bijkeuken met een doorloop naar de geïsoleerde werkruimte, totaal maar liefst 26 m2!.

1e Etage:
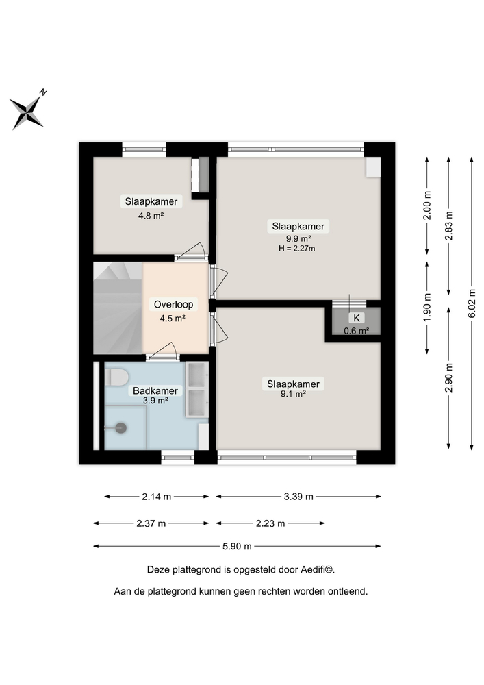
3 slaapkamers van ca. 5m², 9 m² en 9 m², waarvan een met vaste kast,
Moderne badkamer (ca. 4 m2) met inloopdouche, 2e toilet en wastafelmeubel.

2e Etage:
Vaste trap naar de zolder alwaar een 4e slaapkamer en bergruimte is gerealiseerd.
Hier is ook de hete luchtinstallatie gesitueerd (Brink, BJ 2021).

Leuke onderhoudsarme achtertuin met grote veranda (ca. 15 m2) en een berging van ca. 7 m2.
Aan de voorzijde een eigen oprit met comfortabele carport.

OMGEVING
De rustige, kindvriendelijke woonwijk is ruim opgezet en op loopafstand bevinden zich 2 schoolgemeenschappen. Rondom Leek bevinden zich het mooie natuurgebied Nienoord en het Leekstermeer. Het dorp is voorzien van een ruim winkelaanbod en veel sportaccommodaties waaronder zowel een openlucht-als overdekt zwembad.
Binnen 5 minuten zit u op de A7 richting Groningen en Drachten (15 auto minuten).

BIJZONDERHEDEN
- Keurig bewoond!
- Heteluchtverwarming d.m.v. een BRINK heteluchtverwarmingssysteem bouwjaar 2021
- Volledig geïsoleerd
- Badkamer en toilet vernieuwd in 2016.

Kenmerken

  • Woonhuistype: Twee_onder_een_kapwoning
  • Bouwvorm: Bestaande bouw
  • Daktype: Dwarskap
  • Energieklasse: B

Deze woning is al verkocht door Boekholt & partners!

Wilt u ook uw woning door een makelaar van Boekholt & partners laten verkopen? Vul dan het onderstaande formulier in.