Neem nu contact op. Bel 050-3114646

Achterhoeskamp 38

9751 WR Haren gn

€ 845.000 k.k.

Woonoppervlakte
171m2

Perceelopervlakte
275 m2

Bouwjaar
2018

Soort bouw
EENGEZINSWONING

Omschrijving

KORT
Op een prachtige locatie (achter vrij, fenomenaal en weids uitzicht), aan de rand van het groene dorp Haren, bevindt zich dit moderne en energiezuinige halfvrijstaand woonhuis. Groot (171 m2) en modern. Goed geïsoleerd. Instapklaar.

OMGEVING
Gelegen in de kindvriendelijke wijk “Het Harener Holt”, biedt deze woning een ideale mix van comfort, natuur en stadsleven. Wat deze woning extra bijzonder maakt is het vrije uitzicht achter: ongekend! Maar ook; op loopafstand van natuurgebied De Vork, met een prachtige waterplas en een weids uitzicht op het historische dorp Essen en de skyline van Groningen. Hier kunt u heerlijk wandelen, fietsen en genieten van de natuur. Tegelijkertijd bevindt het bruisende centrum van Groningen zich op korte afstand.
De kindvriendelijke buurt met diverse speeltuinen maakt het voor jonge kinderen een fijne plek om op te groeien. In de omgeving zijn voorzieningen als basisscholen, opvangcentra, sportverenigingen en supermarkten binnen enkele minuten te bereiken.
Daarnaast is de buurt heel prettig. Jaarlijkse evenementen als het kinderfestival, af en toe een straatborrel en evenementen als Halloween Harenerholt kenmerken de goede sfeer in deze populaire wijk.

INDELING:
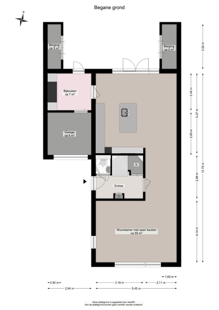
Begane grond: entree/hal met trapopgang, toilet met fonteintje, ruime en lichte U-vormige living (totaal: ca: 60 m2) met parket en vloerverwarming. Aan de voorzijde de zitkamer en de achterzijde de riante woonkeuken met kookeiland en v.v. inbouwapparatuur en openslaande deuren naar de achtertuin. Vanuit de keuken heeft u tevens toegang tot de bijkeuken (7 m2) en de fietsenschuur van 8 m2 (voormalig garage).
Eerste verdieping: overloop, 3 slaapkamers (15, 14 en 10 m2), moderne badkamer (7 m2) met inloopdouche, wastafelmeubel en tweede toilet.
Tweede verdieping: overloop met ruimte voor de Finse sauna, en (mooi weggewerkt) de wasmachineaansluting. Voorts een ruime 4e slaapkamer (14 m2) met bergruimte.

ALGEMEEN
- gebouwd in de geliefde jaren '30 stijl;
- woonoppervlak: ca. 171 m2;
- perceelgrootte: 279 m2;
- bouwjaar: 2018;
- energiezuinig (energielabel A);
- volledig geïsoleerd;
- kunststof kozijnen met HR++ glas;
- onderhoudsarm;
- v.v. 12 zonnepanelen;
- cv-verwarmd;
- hybride warmtepomp;
- voorzien van vloerverwarming;
- ideaal gezinshuis!

LET OP
- standaard waarborgsomregeling van toepassing;
- foto's zijn gemaakt met een groothoeklens;
- bekijk onze uitgebreide plattegronden op funda;
- aanvaarding in overleg. Kan nog voor de kerst!

Kenmerken

  • Woonhuistype: Geschakelde_twee_onder_een_kapwoning
  • Bouwvorm: Bestaande bouw
  • Daktype: Dwarskap
  • Energieklasse: A

Deze woning is al verkocht door Boekholt & partners!

Wilt u ook uw woning door een makelaar van Boekholt & partners laten verkopen? Vul dan het onderstaande formulier in.