Neem nu contact op. Bel 050-3114646

Stelmaker 16

9321 KE Peize

€ 445.000 k.k.

Woonoppervlakte
108m2

Perceelopervlakte
290 m2

Bouwjaar
1989

Soort bouw
EENGEZINSWONING

Omschrijving

Wonen met ruimte, comfort én zon in Peize!

Ben jij op zoek naar een instapklare 2-onder-1-kapwoning waar duurzaamheid en wooncomfort samenkomen? Aan de Stelmaker 16 in Peize vind je precies dat — en meer.

Deze ruime woning heeft vier slaapkamers, een uitgebouwde garage (ca. 23 m²) en een zonnige tuin op het zuiden. Met energielabel A, 14 zonnepanelen, HR++ beglazing en een moderne installatie met CV-ketel (2023), infraroodpanelen en airco’s is dit huis helemaal klaar voor de toekomst.

De woning ligt aan een rustige, verkeersarme straat in een kindvriendelijke wijk met scholen, winkels en sportvoorzieningen dichtbij. Bovendien sta je binnen no-time in het groene buitengebied voor een heerlijke wandeling of fietstocht.

Indeling:
Begane grond:
Via de entree kom je in de hal met modern toilet en meterkast. De lichte woonkamer heeft grote raampartijen door de schuifpui naar de zonnige tuin. De halfopen keuken (2015) is strak en compleet met inductiekookplaat, combi-oven, vaatwasser en koel-vriescombinatie. Vanuit de hal is er een binnendoor toegang tot de garage met water- en elektra-aansluiting.

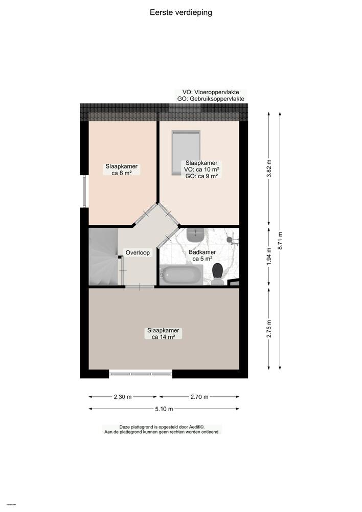
Eerste verdieping:
Overloop met drie slaapkamers (ca. 8 m², 10 m² en 14 m²) en een volledige badkamer met ligbad, douche, wastafelmeubel en tweede toilet.

Tweede verdieping:
Ruime overloop met CV-opstelling, witgoedaansluitingen en bergruimte. Daarnaast de vierde slaapkamer (ca. 11 m²) met groot dakraam.

Tuin:
De fraai aangelegde tuin op het zuiden biedt de hele dag zon. Via de schuifpui of de garage stap je zo naar buiten. De tuin beschikt over een achterom en volop privacy. Voor de woning is er een ruime oprit.

Bijzonderheden:
- Energielabel A
- 14 zonnepanelen (2014)
- 4 slaapkamers
- Garage 23 m² met elektra en water
- Verwarming via CV (2023), infraroodpanelen en airco’s
- HR++ glas
- Zonnige tuin op het zuiden
- Rustige, kindvriendelijke locatie
- Gewenste aanvaarding: april/mei 2026

Kortom: een zeer goed onderhouden, duurzame familiewoning met alles wat je zoekt — ruimte, licht en comfort op een heerlijke plek in Peize. Kom kijken en laat je verrassen door de Stelmaker 16!

Kenmerken

  • Woonhuistype: Twee_onder_een_kapwoning
  • Bouwvorm: Bestaande bouw
  • Daktype: Zadeldak
  • Energieklasse: A

Deze woning is al verkocht door Boekholt & partners!

Wilt u ook uw woning door een makelaar van Boekholt & partners laten verkopen? Vul dan het onderstaande formulier in.