Neem nu contact op. Bel 050-3114646

Pioenstraat 19

9713 XN Groningen

€ 475.000 k.k.

Woonoppervlakte
120m2

Perceelopervlakte
108 m2

Bouwjaar
2004

Soort bouw
EENGEZINSWONING

Omschrijving

KORT
Wonen aan het Pioenpark! Deze gewilde stadswoning (ca. 120 m2) uit 2004 met fijne achtertuin en eigen parkeerplaats is gelegen aan een rustige straat aan het levendige Pioenpark. Deze architectonisch hoogwaardige woningen zijn verdeeld over 4 woonlagen en het woonprogramma is speels van opzet. Goed geïsoleerd en lekker instapklaar.

INDELING
Begane grond: entree/hal met meterkast en toilet. Vanuit de hal toegang tot de woonkeuken van ca. 24 m2 met keukenblok (2019) in L- vormige opstelling v.v. inbouwapparatuur. Vloerverwarming en een strakke gietvloer, maken deze verdieping af.
Eerste verdieping: via de open en fijn beloopbare trap toegang naar het woongedeelte van circa 30 m2. De woonkamer is heerlijk licht en biedt een extra fraai uitzicht aan de voorzijde over het park.
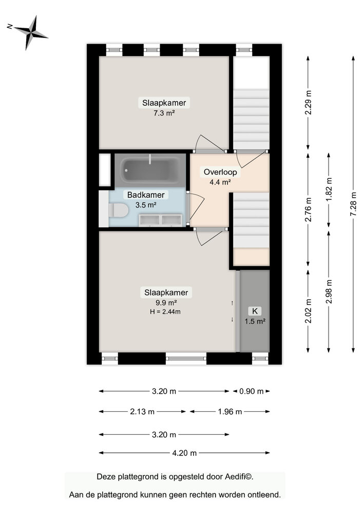
Tweede verdieping: overloop, twee slaapkamers (12 en 7 m2), waarvan de grootste een inbouwkastenwand heeft. Tussen de beide slaapkamers is de moderne (2019) badkamer (4 m2) gelegen met dubbele wastafel, ligbad/douche en een tweede toilet.
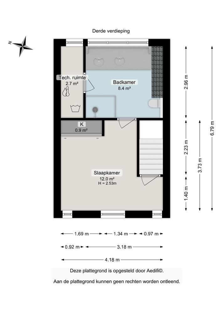
Derde verdieping: fraaie 3e slaapkamer (ca. 13 m2) inclusief kast en een tweede badkamer van ruim 8 m2 (incl. 2 wastafels, veel bergruimte, derde toilet en douche) en de technische/was ruimte. Mede door de grote dakkapel (2017) is dit een fijne ruimte om te zijn met ook weer prachtig uitzicht aan beide zijden.

TUIN
Achtertuin met eigen parkeerplaats en houten berging (10 m2). De achtertuin is te bereiken vanuit de woonkeuken en te bereiken via het achtergelegen mandelige terrein zodat u ook met uw auto uw eigen parkeerplaats kan bereiken. De tuin biedt voor stadse begrippen veel privacy en is gelegen op het noordoosten. U heeft hier eigenlijk (door de diepte) de hele dag wel zon. In de avond kunt u nog lange tijd gezellig buiten in het zonnetje zitten op de bankjes voor het huis en uitzicht op het park!

PIOENPARK
Het Pioenpark is gelegen in het oostelijke deel van de stadswoonwijk Oosterpark en heeft een omvang van circa 8 hectare. Het park wordt begrensd door de Resedastraat in het zuiden, de Pioenstraat in het oosten, de Oliemuldersweg in het westen en de Kraanvogelstraat in het noorden. Het park werd aangelegd in het begin van de jaren vijftig van de vorige eeuw en maakt deel uit van de groengordel rond de vooroorlogse wijken Korrewegwijk en Oosterparkwijk. Er zijn naast de natuur in het park voorzieningen als o.a. een tennisveld, een speeltuin en een jeu de boulebaan en een Johan Cruyff Court waar vele kinderen zich prima vermaken. Wijkcentrum voor de deur nog benoemen?

OMGEVING
Het betreft een uitgekiende locatie ten opzichte van voorzieningen als winkels en het centrum van Groningen (5 minuutjes fietsen naar de Grote Markt). Diverse voorzieningen als supermarkten, kappers, scholen, kinderdagverblijven, cafés, restaurants bevinden zich in de nabijheid. Binnen 3 minuten zit u op de ringweg en andere uitvalswegen. Voor wie een speelse en bijzondere woning op een mooi en rustig plekje nabij de stad zoekt is deze stadswoning een echte buitenkans!

ALGEMEEN
- bouwjaar 2004;
- woonoppervlakte circa 120 m2;
- perceelgrootte 108 m2;
- geheel geïsoleerd;
- energielabel A;
- verwarming en warm water middels cv-combiketel uit 2017;
- v.v. 10 zonnepanelen (nieuw, ze liggen er net op!);
- op de 3e verdieping is net een airco geplaatst;
- elektrische laadpaal is ter overname.

LET OP
- standaard waarborgsomregeling van toepassing;
- foto's zijn gemaakt met een groothoeklens;
- bekijk onze uitgebreide plattegronden op funda;
- aanvaarding in overleg. Voorkeur voor begin 2026.

Kenmerken

  • Woonhuistype: Tussenwoning
  • Bouwvorm: Bestaande bouw
  • Daktype: Plat dak
  • Energieklasse: A_p

Deze woning is al verkocht door Boekholt & partners!

Wilt u ook uw woning door een makelaar van Boekholt & partners laten verkopen? Vul dan het onderstaande formulier in.