Neem nu contact op. Bel 050-3114646

De Landerijen 62

9603 HT Hoogezand

€ 335.000 k.k.

Woonoppervlakte
114m2

Perceelopervlakte
225 m2

Bouwjaar
2006

Soort bouw
EENGEZINSWONING

Omschrijving

KORT
Op zeer gewilde plek gelegen; keurig gezinshuis (type: tussenwoning) in Vosholen. Onder andere: goed geïsoleerd, eigen parkeerplaats en ook nog eens een zonnige en bijzonder grote tuin!

OMGEVING
De Vosholen is een groene kindvriendelijke nieuwbouwwijk.
De 2 basisscholen (OBS Theo Thijssenschool en de RKBS st. Antioniusschool) en peuteropvang hoef je slechts 1 straat over te steken.
Kinderopvang en BSO is ook in de wijk te vinden.
Het voortgezet onderwijs (dr. Aletta Jacobscollege - vmbo, havo, vwo), winkelcentrum, gemeentehuis, bioscoop, theater en treinstation bevinden zich eveneens op loop-/fietsafstand.
De woonwijk sluit aan op sportpark de Kalkwijck.
Daar bevinden zich diverse sportvelden, een grote sporthal en het zwembad.
Hoogezand beschikt over vele voorzieningen op velerlei gebied. Zowel op economisch als, sociaal, cultureel en sportief gebied.
Tevens goede openbare vervoersvoorzieningen met de bus en de trein.
De A7 is een naastgelegen verkeersader voor het autoverkeer,

INDELING
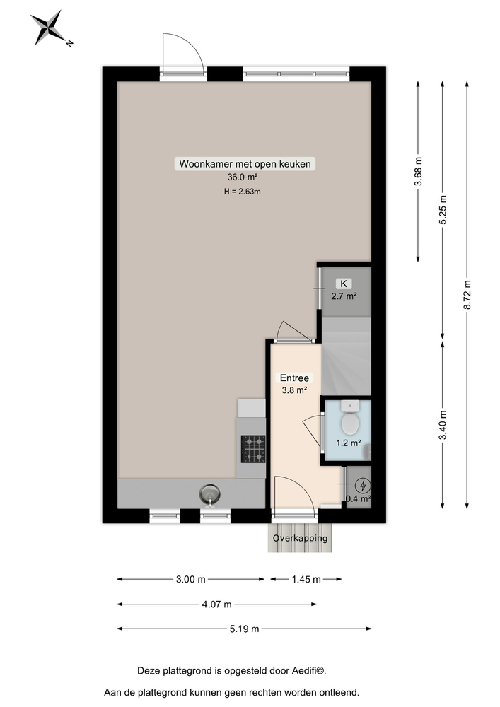
Begane grond: entree/hal, toilet met fontein, meterkast, en trapopgang. Fijne woonkamer (36 m2) met handige trapkast en aan de voorzijde de keuken met keukenblok in L-opstelling v.v. inbouwapparatuur.
Eerste verdieping: overloop, twee slaapkamers (22 en 11 m2), waarvan de grootste weer te splitsen is naar 2 kamers. De keurige badkamer komt uit 2023 en heeft een dubbel wastafelmeubel, tweede toilet en een inloopdouche.
Tweede verdieping: overloop met cv-opstelling, omvormer voor de zonnepanelen en wasmachineaansluiting. Verder de 3e slaapkamer van 11 m2 met extra bergruimte.

TUIN
De voortuin is bestraat en heeft plaats voor de auto.
Aan de achterzijde (zuidwest gericht) is de bijzonder diepe achtertuin met terras, gazon, borders en een schuurtje met een achterom.
Totale grondoppervlakte maar liefst 225 m2!

ALGEMEEN
- woonoppervlakte 114 m2;
- verzorgd huis;
- v.v. 8 zonnepanelen (2025);
- volledig geïsoleerd;
- HR++ beglazing;
- energielabel A;
- cv-combiketel uit 2023 (in eigendom);
- lage energielasten;
- kortom: heerlijk huis op topplek!

LET OP
- standaard waarborgsom regeling;
- foto's zijn gemaakt met een groothoeklens;
- bekijk onze uitgebreide brochure en plattegronden op funda;
- aanvaarding in overleg. Voorkeur voor februari 2026.

Kenmerken

  • Woonhuistype: Tussenwoning
  • Bouwvorm: Bestaande bouw
  • Daktype: Zadeldak
  • Energieklasse: A

Deze woning is al verkocht door Boekholt & partners!

Wilt u ook uw woning door een makelaar van Boekholt & partners laten verkopen? Vul dan het onderstaande formulier in.