Neem nu contact op. Bel 050-3114646

Melisseweg 17c

9731 BM Groningen

€ 495.000 k.k.

Woonoppervlakte
125m2

Perceelopervlakte
138 m2

Bouwjaar
2020

Soort bouw
EENGEZINSWONING

Omschrijving

KORT
Royale gezinswoning (125 m2) op een fijne plek. Ruimte, licht en comfort zijn belangrijke kenmerken voor dit huis, dat onder andere voorzien is van een luchtwarmtepomp, zonnepanelen en een warmte-terugwin systeem. En... geen gasmeter in de meterkast! Perfect gezinshuis.

OMGEVING
De groene woonwijk Ulgersmaborg staat bekend als een populaire woonwijk in Groningen, gelegen tussen het stadscentrum en het natuurgebied Kardinge. Deze wijk biedt een unieke mix van historische charme, alle belangrijke voorzieningen en nieuwbouw, waardoor het een aantrekkelijke en gevarieerde woonomgeving vormt. De woning is met alle vervoersmiddelen zeer goed te bereiken en kent een goede ontsluiting naar de ringweg. Gratis parkeren!

INDELING
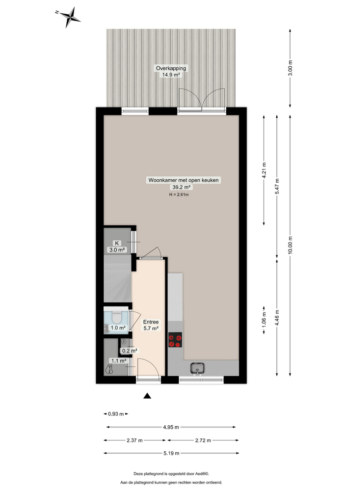
Begane grond: entree, hal met trapopgang, toilet en technische ruimte, tuingerichte (uitgebouwde) woonkamer met openslaande tuindeuren en een moderne straatgerichte open keuken v.v. inbouwapparatuur. De prachtige living is ca. 40 m2 groot.
Eerste verdieping: overloop, 3 keurige slaapkamers (7, 12 en 12 m2) en een strakke badkamer (6 m2) met dubbel wastafelmeubel, ligbad, inloopdouche en tweede toilet.
Tweede verdieping: flinke overloop met wasmachineaansluiting en een fijne 4e slaapkamer van netto 15 m2..

TUIN
- nette bestrate voortuin;
- heerlijke achtertuin;
- keurig aangelegd en onderhoudsarm;
- gelegen op het noordoosten;
- een fijne overkapping (15 m2) aan het huis;
- met houten tuinberging (6 m2);
- perceeloppervlak van 138 m2.

ALGEMEEN
- zorgvuldig bewoond;
- gasloos;
- hoogwaardige toekomstbestendige voorzieningen;
- inclusief 13 zonnepanelen;
- zeer goed geïsoleerd (A+++);
- vloerverwarmd (m.u.v. de zolder);
- bijzonder weinig energielasten;
- hier kun je zo in!

LET OP
- standaard waarborgsomregeling van toepassing;
- bekijk onze uitgebreide plattegronden op funda;
- aanvaarding in overleg. Voorkeur vanaf maart 2026.

Kenmerken

  • Woonhuistype: Tussenwoning
  • Bouwvorm: Bestaande bouw
  • Daktype: Zadeldak
  • Energieklasse: A_ppp

Deze woning is al verkocht door Boekholt & partners!

Wilt u ook uw woning door een makelaar van Boekholt & partners laten verkopen? Vul dan het onderstaande formulier in.