Neem nu contact op. Bel 050-3114646

Vindicatstraat 2

9741 CL Groningen

€ 499.000 k.k.

Woonoppervlakte
114m2

Bouwjaar
1926

Soort bouw
EENGEZINSWONING

Omschrijving

Karakteristieke, ruime en onderhoudsarme jaren '30 eengezins-hoek-woning met doorzonkamer en open keuken op de begane grond, twee royale slaapkamers en een fraaie badkamer op de verdieping en een prachtige en unieke studiokamer (eenvoudig op te delen in twee slaapkamers) op de tweede verdieping. Gezellige en zonovergoten achtertuin met fietsenberging en achterom. Gelegen aan een gemoedelijke straat op loopafstand van Noorderplantsoen en Noorderstation. Deze fraaie woning is in 2007 volledig casco gerenoveerd en geïsoleerd en vanaf 2012 door de huidige bewoners met zorg verder verfraaid, waarbij karakteristieke jaren ’30-elementen zijn teruggebracht.
Energielabel B, derhalve energiezuinig. Verder nauwelijks omkijken naar onderhoud, dat gaat namelijk via een gezonde vereniging van eigenaren met lage bijdrage (€ 107,- per maand).

DE OMGEVING
Op loopafstand van het Noorderplantstoen, Noorderstation en stadscentrum. Vele voorzieningen in de nabijheid zoals twee winkelcentra, speeltuin, meerdere scholen en het Zernike complex. En binnen ca. 5 autominuten ben je op de ringweg met goede verbindingen richting de A7, A28 en Eemshaven.

INDELING
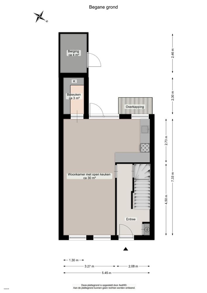
Begane grond:
Ruime entree/hal met meterkast, toilet, toegang naar de woonkamer en trapopgang. Leuke antieke plavuizen op de vloer.
Gezellige en lichte doorzonwoonkamer (ca. 30 m2 met open keuken) met fraaie houten vloerdelen en openslaande deuren naar de diepe tuin.
Open landelijke keuken in hoekopstelling voorzien van koel-vriescombi, vaatwasser, losstaand gasfornuis met oven en schouw met afzuiging.
In de uitbouw een praktische inloopberging met vaste kasten.

Verdieping: overloop met toilet en vaste kast.
Twee slaapkamers (en suite) van ca. 14 en 10 m2. De grote slaapkamer is voorzien van een grote kastenwand en de voorste van een sfeervol balkenplafond.
Moderne en fraaie badkamer (ca. 6 m2) met ligbad, inloopdouche en wastafelmeubel. Vanuit de badkamer is het balkon te bereiken.

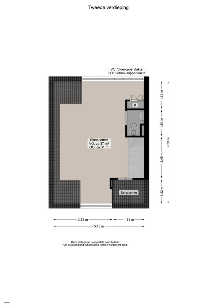
Tweede verdieping:
Prachtig recentelijk verbouwde zolderverdieping (totaal ca. 31 m2) met twee dakkapellen, vaste kast en een vide/bergzolder.
Separate waskamer (Cv ketel 2024).

De tuin:
Voortuin op de ochtendzon.
Heerlijke sfeervolle achtertuin (ca. 8 bij 5,6 meter, tevens leefgebied van een egeltje), met gazon, bordes, klimop, druif en grindpad, gelegen op het zonnige westen. In de achtertuin bevindt zich een aangebouwde berging en een achterom. Achter de tuin ligt nog een berging in het afgesloten binnenterrein.

BIJZONDERHEDEN
- Keurig bewoond, strakke wanden en overal paneeldeuren
- meerdere indelingsmogelijkheden (vier slaapkamers is eenvoudig te realiseren)
- energielabel B
- onderhoudsarm
- voorzien van kunststof kozijnen en HR ++ glas
- shutters op tweede verdieping.

Let op verkoopvoorwaarden van toepassing (zie verkoopvoorwaarden brochure)
- Ouderdomsclausule
- asbestclausule
- waarborgsom.

Kenmerken

  • Woonhuistype: Hoekwoning
  • Bouwvorm: Bestaande bouw
  • Daktype: Zadeldak
  • Energieklasse: B

Deze woning is al verkocht door Boekholt & partners!

Wilt u ook uw woning door een makelaar van Boekholt & partners laten verkopen? Vul dan het onderstaande formulier in.