Neem nu contact op. Bel 050-3114646

Langestraat 240

9712 MJ Groningen

€ 525.000 k.k.

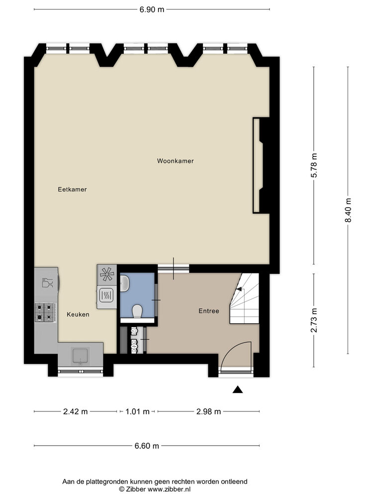
Woonoppervlakte
118m2

Bouwjaar
1912

Omschrijving

HET PALEIS
Wonen in een paleis? Dat kan nu. In het voormalig scheikundig laboratorium van de Rijksuniversiteit Groningen, beter bekend als het Paleis, is een schitterend appartement beschikbaar gekomen. In het Paleis zijn de functies wonen, werken, recreëren, ontmoeten en cultuur op een unieke manier samengebracht. Het cultureel centrum omvat een hotel, een brasserie, woningen en ateliers, voor een deel gelegen aan intieme binnenpleinen waardoor het geheel een Berlijnse sfeer ademt.

Het Paleis is gelegen op de kop van het Boterdiep aan de rand van het Ciboga terrein. Het gebied moet het visitekaartje van de stad worden. Een combinatie van oud en nieuw. Spraakmakende woningbouw, het nieuwe Student Hotel, restaurants, café's en veel culturele en innovatieve bedrijvigheid. En dat aan de rand van de binnenstad, vlakbij het prachtige Noorderplantsoen.

HET APPARTEMENT
Het appartement is gelegen op de eerste verdieping van het Paleis aan een intiem binnenplein. De appartementen zijn met elkaar verbonden door een balustrade. De ingang van het appartement bevindt zich aan deze balustrade. U kunt daar heerlijk buiten zitten en genieten van de zon.

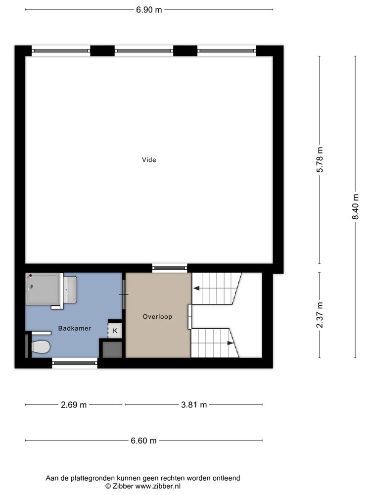
Het lichte en ruime appartement (118 m2) telt twee verdiepingen en een tussenverdieping.. De plafonds beneden bevinden zich op een hoogte van 4.40 meter. De living (46 m2) van het appartement heeft een logische indeling met een moderne keuken (2018) voorzien van alle benodigde apparatuur. Bekijk ook vooral de fraaie, grote raampartijen. Hier vindt u ook nog de meterkast en een modern toilet. Met de trap komt u op de tussenverdieping met een in 2026 gepimpte badkamer (6m2). Middels een entresol is de woning nog flink uit te breiden.

Op de tweede verdieping bevinden zich 2 speelse en riante slaapkamers van 21 (met extra leuk zitje en kast) en 12 m2, met wederom hoge plafonds. Op deze etage bevindt zich ook nog een berging met wasmachineaansluiting.

ALGEMEEN
- zorgeloos wonen;
- actieve en professionele VvE;
- bijdage 266,- euro per maand;
- bijzonder en speels;
- cv-combikel uit 2022;
- bouwjaar oorspronkelijk 1912;
- in 2009 verbouwd;
- in 2024 v.v. een chique eiken parketvloer;
- instapklaar.

LET OP
- standaard waarborgsomregeling van toepassing;
- foto's zijn gemaakt met een groothoeklens;
- bekijk onze uitgebreide plattegronden op funda;
- aanvaarding: in overleg. Voorkeur september 2026.

Kenmerken

  • Bouwvorm: Bestaande bouw
  • Daktype: Samengesteld dak
  • Energieklasse: A

Bezichtig deze woning.

Vul dit formulier in om direct een vrijblijvende bezichtiging in te plannen.