Neem nu contact op. Bel 050-3114646

J.M. den Uylstraat 304

9728 RK Groningen

€ 875.000 k.k.

Woonoppervlakte
208m2

Perceelopervlakte
575 m2

Bouwjaar
1989

Soort bouw
EENGEZINSWONING

Omschrijving

KORT
Aan de rand van de gewilde woonwijk Hoornse Meer vinden we deze ruime (208 m2) en tevens flink uitgebouwde vrijstaande woning met garage, carport en prachtige tuin. Geïsoleerd, bijzonder en goed onderhouden. Heerlijk gezinshuis!

OMGEVING
Dit huis is prachtig gelegen met slechts op steenworp afstand het mooie water van het Hoornsemeer, een heerlijke plek om te recreëren. Je kunt hier namelijk wandelen, fietsen, zwemmen, surfen en suppen. Daarnaast is er een waterskivereniging en een roei- en zeilvereniging aan het Paterswoldsemeer. Aan de achterzijde grenst het huis aan een brede groenstrook met water waardoor de achtertuin over veel privacy beschikt en besloten is gelegen.

INDELING
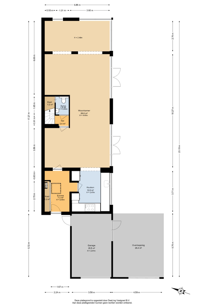
Begane grond: entree/hal met vaste kast en meterkast. Bijzonder royale living (ca. 82 m2) met aan de voorzijde de flinke keuken (12 m2) v.v. een robuust keukenblok met vernieuwd inbouwapparatuur. De tuingerichte woonkamer is prachtig en heerlijk licht. Hier zijn veel mogelijkheden voor een praktische indeling. Een eetgedeelte, zitgedeelte en werkkamer; het past allemaal makkelijk. Er zijn 2 dubbele openslaande deuren naar de zonnige tuin op het zuiden. De tussenhal biedt toegang naar het toilet met trapkast en de trapopgang naar de verdieping.
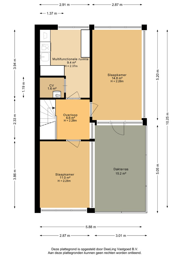
Eerste verdieping: overloop met kast en separaat toilet, 3 slaapkamers van respectievelijk 15 (inclusief vaste kast), 12 en 10 m2. De eerste badkamer (ca. 5 m2) heeft een wastafel met douche. De tweede badkamer (6 m2) is toegankelijk via de grote slaapkamer en is v.v. wastafelmeubel, douche en ligbad.
Tweede verdieping: overloop en nog eens 2 slaapkamers (15 en 11 m2) en een multifunctionele ruimte van ongeveer 10 m2 met cv-kast. Het dakterras is via de grote slaapkamer te bereiken en heeft een afmeting van 15 m2.

TUIN
- heerlijke zonnige tuin op het zuiden;
- perceelgrootte 575 m2;
- gelegen aan een groenstrook;
- veel privacy;
- aan de voorzijde de garage (21 m2) en carport (26 m2) met laadpaal.

ALGEMEEN
- woonoppervlakte: 208 m2;
- inhoud: 775 m3;
- bouwjaar: 1989
- energielabel: A;
- begane grond is heerlijk ruim;
- voorzien van 15 zonnepanelen;
- sedumdaken;
- hybride warmtepomp (2023) met cv-ketel (2020);
- buitenschilderwerk gedaan in 2024;
- gevelreiniging van 2025;
- verzorgd woonhuis.

LET OP
- standaard waarborgsomregeling van toepassing;
- ouderdomsclausule van toepassing;
- foto's zijn gemaakt met een groothoeklens;
- bekijk onze uitgebreide plattegronden op funda;
- aanvaarding: in overleg. Voorkeur juli/augustus 2026.

Kenmerken

  • Woonhuistype: Vrijstaande_woning
  • Bouwvorm: Bestaande bouw
  • Daktype: Plat dak
  • Energieklasse: A

Deze woning is al verkocht door Boekholt & partners!

Wilt u ook uw woning door een makelaar van Boekholt & partners laten verkopen? Vul dan het onderstaande formulier in.