Neem nu contact op. Bel 050-3114646

Het Sas 16

9613 CJ Meerstad

€ 495.000 k.k.

Woonoppervlakte
122m2

Perceelopervlakte
151 m2

Bouwjaar
2017

Soort bouw
EENGEZINSWONING

Omschrijving

KORT
Instapklare, energiezuinige en onderhoudsarme eengezinstussenwoning met een hoogwaardig afwerkingsniveau, vier slaapkamers en energielabel A+++, gelegen in de jonge en kindvriendelijke wijk Tersluis (Meerstad). De woning beschikt over een lichte, tuingerichte woonkamer met open keuken (ca. 44 m2), een moderne badkamer en een ruime zolderverdieping met slaapkamer. Aan de voorzijde een tuintje alsmede een ruime, verzorgde achtertuin met vrijstaande berging en achterom. Dankzij de duurzame installaties, waaronder zonnepanelen en een warmtepomp, woon je hier comfortabel én uitermate energiezuinig.

OMGEVING
De woning ligt in de populaire wijk Tersluis in Meerstad, een rustige, groene en waterrijke omgeving. De buurt is bijzonder kindvriendelijk en beschikt over diverse speelvoorzieningen, waaronder een grote speeltuin achter de woning. Voorzieningen zoals een supermarkt, basisschool en het strand van Meerstad bevinden zich op korte afstand. Daarnaast is de binnenstad van Groningen goed bereikbaar, zowel met de auto als met de fiets (ca. 15 minuten).

INDELING
Hal/entree met toilet, trapopgang en doorloop naar de woonkamer.
Royale, tuingerichte woonkamer met open keuken (totaal ca. 44 m2). De woonkamer is voorzien van een mooie gietvloer, is tuingericht en kenmerkt zich door de grote raampartijen en de openslaande deuren aan de achterzijde, wat zorgt voor een prettige lichtinval en een mooie verbinding met de tuin.
De moderne open keuken (2017) is strak uitgevoerd en voorzien van hoogwaardige inbouwapparatuur, waaronder een inductiekookplaat met afzuigkap, combi-oven, vaatwasser en koel-vriescombinatie.

Verdieping:
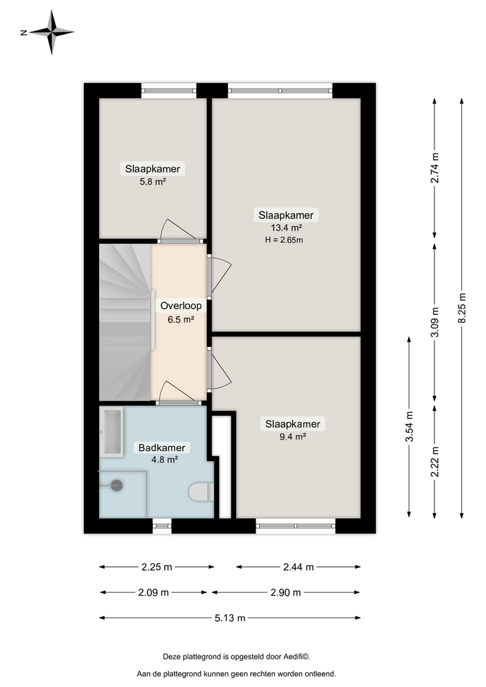
Op de eerste verdieping bevinden zich drie slaapkamers.
Twee slaapkamers aan de achterzijde (ca. 13 m2) en (ca. 6 m2). Een slaapkamer (ca. 9 m2) aan de voorzijde. De moderne badkamer (ca. 5 m2) is uitgevoerd met een inloopdouche, wastafelmeubel en een tweede toilet. Een draaikiepraam geeft extra ventilatie en lichtinval.

Tweede verdieping:
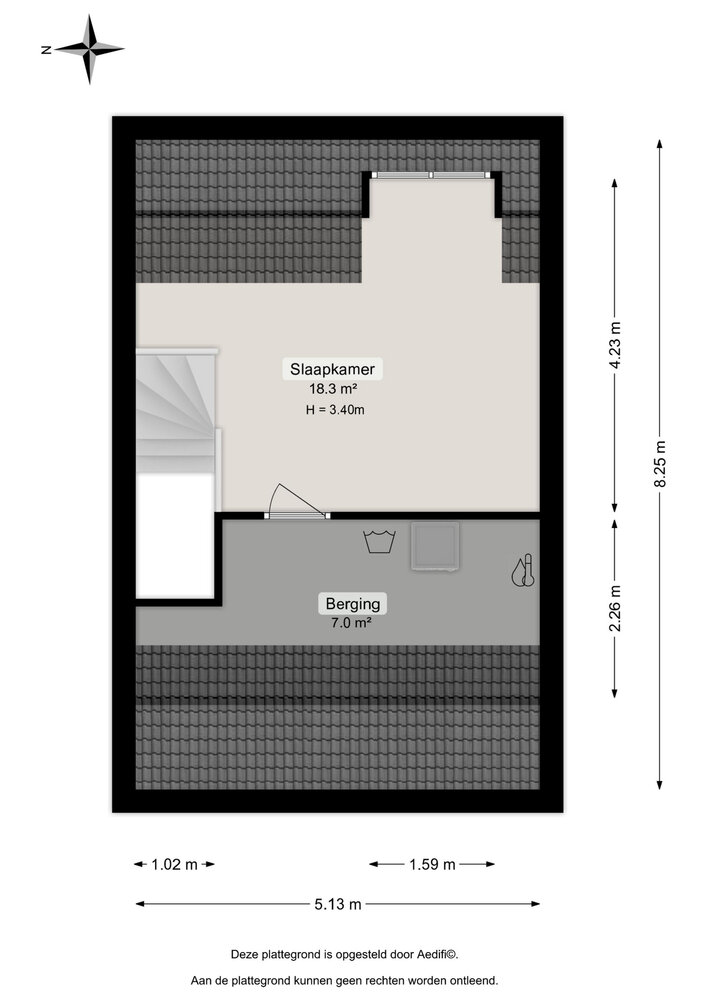
Royale vierde slaapkamer (ca. 18 m2) met grote dakkapel en derhalve veel lichtinval.
Daarnaast is er een praktische technische ruimte met opstelling van de warmtepomp en aansluitingen voor wasmachine en droger.

TUIN
Nette en diepe (ca. 11 meter!) achtertuin is gelegen op het oosten en biedt een fijne combinatie van terras en groen. Dankzij de openslaande deuren loopt de binnenruimte naadloos over in het buitenleven. Achter in de tuin bevindt zich een vrijstaande houten berging (ca. 6 m2), ideaal voor fietsen en opslag.

ALGEMEEN
De woning is gebouwd in 2017 en volledig geïsoleerd en voorzien van warmtepomp en 13 (9+4) zonnepanelen, wat resulteert in een energielabel A+++. De woning is verder voorzien van vloerverwarming op alle verdiepingen.
Het geheel verkeert in een zeer nette en instapklare staat en beschikt over een modern en verzorgd afwerkingsniveau.

BIJZONDERHEDEN
- Onderhoudsarm en uitermate energiezuinig
- gewilde woonomgeving met groen en vele voorzieningen
- gezellig straatje
- ring Groningen op 5 autominuten

LET OP
standaard waarborgsomregeling van toepassing.

Kenmerken

  • Woonhuistype: Tussenwoning
  • Bouwvorm: Bestaande bouw
  • Daktype: Dwarskap
  • Energieklasse: A_ppp

Bezichtig deze woning.

Vul dit formulier in om direct een vrijblijvende bezichtiging in te plannen.